Egret Solar är en specialiserad leverantör av PV-monteringslösningar, den solpanelsmonterade takklämman som introduceras här är tillgänglig för bulkbeställningar och andra stora upphandlingsbehov. Takklämman är speciellt utformad för att rymma trapetsformad korrugerad ståltak och använder en icke-borrbar, som monteras direkt på topparna av metallpanelerna. För solcellsprojekt som arbetar under budgetrestriktioner, minimerar valet av denna takklämma oanvända takmarginaler, vilket maximerar den installerade kapaciteten för takytan. Tillverkad av höghållfast rostfritt stål med sandblästrad ytfinish och tillsammans med en vattentät gummikudde av EPDM.
Den primära funktionen för den korrugerade ståltakssolklämman är att säkert fästa PV-moduler på toppen av färgade ståltakprofiler. Ingen förborrning krävs, du kan helt enkelt använda en elektrisk skruvmejsel för att skruva in självgängande skruvar direkt i klämman för fixering. Våra solcellsmonteringsklämmor är utrustade med EPDM, som säkerställer att takets vattentätande lager förblir intakt. Takklämman är designad för horisontell modullayout, om du behöver vertikal modullayout erbjuder Egret Solar även solmonteringstakklämma för det ändamålet. Denna klämma är kompatibel med trapetsformigt färgat ståltak och fungerar som en kritisk komponent för kommersiella och industriella PV-kraftverk.

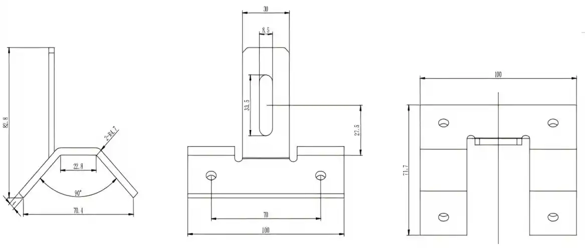
Vår solcellsmonteringsklämma är tillverkad av rostfritt stål och med sandblästrad ytfinish. Det ger utmärkt styrka och korrosionsbeständighet. Den med en EPDM-gummikuddar som passar tätt mot ytan på takpannan, säkerställer en vattentät tätning för takpannan. Våra standard takklämmor mäter 100 mm i längd, bilden nedan med specifika mått detaljerade. Vi kan även anpassa måtten så att de passar ditt taks specifika tegelprofil.
| Produktnamn | Solar trapetsformad takklämma |
| Material | 304 rostfritt stål/EPDM |
| Ytbehandling | Sandblästring |
| Längd | 100 mm, anpassad storlek |
| Installationsorientering | Horisontell |

För solenergi har trapetsformad takklämma en modulär monteringsdesign, vilket gör att den består av Egret Solar47 mm skena, rälskontakt och andra tillbehör för att bilda ett komplett takmonteringssystem i solcellsmetall. Den trapetsformade korrugerade ståltakklämman fästs vid 47 mm skenan med M8-bult ochglidmutter, medan mittklämman och ändklämman är placerade på skenan för att ordentligt fästa solcellsmodulerna. Vi kommer att beräkna höjden på ändklämmorna och längden på bultarna för att passa dimensionerna på dina PV-moduler.

Baserat på din laterala layoutplan för PV-modulerna, placera No-Drill Solar Roof Clamps mot toppen av de färgade ståltakplåtarna. Nästa steg är helt enkelt att använda en elektrisk skruvmejsel för att dra åt skruvarna, installationen för takklämman tar bara två minuter. Efter det, skjut in muttern i skenan och dra åt M8-bultarna. Placera dina moduler på skenorna, använd sedan mittklämmorna och ändklämmorna för att säkra dem på plats. Slutligen, se till att det inte finns något löst för att slutföra installationen.

Standardkartongmåtten för metalltakens PV-klämmor är 540 x 220 x 220 mm. Standardkonfigurationen innehåller 60 set per kartong, och skruvarna är individuellt förpackade för att förhindra förlust, samt för att skydda mot repor och fukt under transport.


F1: Vilka typer av färgade ståltakplåtar är kompatibla med takklämman?
S: Den är kompatibel med vanliga trapetsformade ståltakplåtar. För ark med speciella specifikationer kan vi tillhandahålla skräddarsydda klämmor.
F2: Äventyrar takklämmans monteringsmetod vattentätningen av det färgade ståltaket?
S: Nej, det gör det inte. EPDM tätningspackningen passar tätt mot takytan, vilket effektivt eliminerar risken för vattenläckage orsakat av takgenomföringar.
F3: Kan du göra OEM/privat märkning för stora beställningar?
S: Ja, vi kan göra OEM för massbeställningar. Vi kan ändra saker som produktetiketter, färger och andra detaljer.
F4: Behöver jag ett proffs för att sätta in den här klämman? Har du instruktioner för hur man gör?
S: Du behöver inget proffs för att lägga in det. Vi kan hjälpa dig att lägga in det genom att ge dig videor eller teknisk hjälp på distans.